在水一方酒店裝修工程
| 項目名稱 | 在水一方酒店裝修工程 | 行業屬性 | 酒店/餐飲/會所 |
| 項目地址 | 北京市通州區永順南街286號 | 項目造價 | 5000.0萬 |
| 主關鍵詞 |
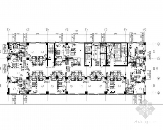
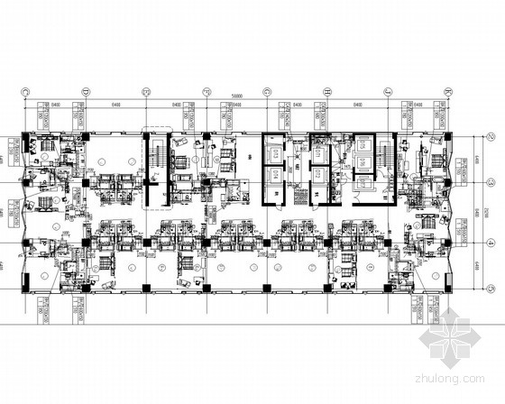
▄原建筑結構分析: 在于甲方進行深刻的溝通之后,設計師采用了中式風格進行裝修。設計師根據甲方需求將空間劃分為大堂、休息區、經理辦公室、客房和豪華客房等,滿足工作人員和顧客的各種需求。
▄設計需求: 設計師以淺灰色為主要顏色進行設計,突出了武漢味遠紅芳酒店的高端大氣,使用最舒適的家具和裝飾,打造最有品質的酒店空間。
▄設計風格定位: 在于甲方進行深刻的溝通之后,設計師采用了中式風格進行裝修。


北京鑄誠大廈辦公裝修工程
北京銀河SOHO辦公裝修工程
301醫院裝修工程
