海天大廈辦公裝修工程
| 項目名稱 | 海天大廈辦公裝修工程 | 行業屬性 | 互聯網/電商/科技 |
| 項目地址 | 長沙市岳麓區楓林三路151號 | 項目造價 | 96萬 |
| 主關鍵詞 |
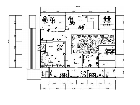
▄原建筑結構分析: 采用了工業風一些獨特的元素,有裸露的紅磚墻、工業水泥,采用獨特簡約形狀和材質的十分復古的吊燈,吊燈以獨特的燈罩進行包裹,透過燈罩我們能直接看到燈泡的形態,而除了燈罩之外,其他部分全部采用黑色的鐵架制作。體現出工業風格的粗獷與狂放。
▄設計需求: 裝修設計要體現時尚感的同時,也賦予了裝修空間更多的個性,企業的員工都是一些80、90的年輕人,要符合企業年輕心態,有創新、品位的點。整個裝修修無論從視覺還是使用都要感受上都符合這些需求。
▄設計風格定位: 我們選擇了工業風格的辦公裝修設計,但我們并沒有選擇像一般的工業風格裝修那樣明顯,而是通過一些富有工業風格的小元素體現出來,如裸露的紅磚背景墻、外露的水管等,在吊頂方面,保留了一個原有的一些水泥色,還有其他的裝飾等。首先是吊燈,吊燈的電線直接外露于空氣中,還采用獨特簡約形狀和材質的十分復古的吊燈。


北京鑄誠大廈辦公裝修工程
北京銀河SOHO辦公裝修工程
301醫院裝修工程
