湘匯大廈辦公裝修工程
| 項目名稱 | 湘匯大廈辦公裝修工程 | 行業屬性 | 互聯網/電商/科技 |
| 項目地址 | 長沙市芙蓉區韶山北路12號 | 項目造價 | 69.8萬 |
| 主關鍵詞 |
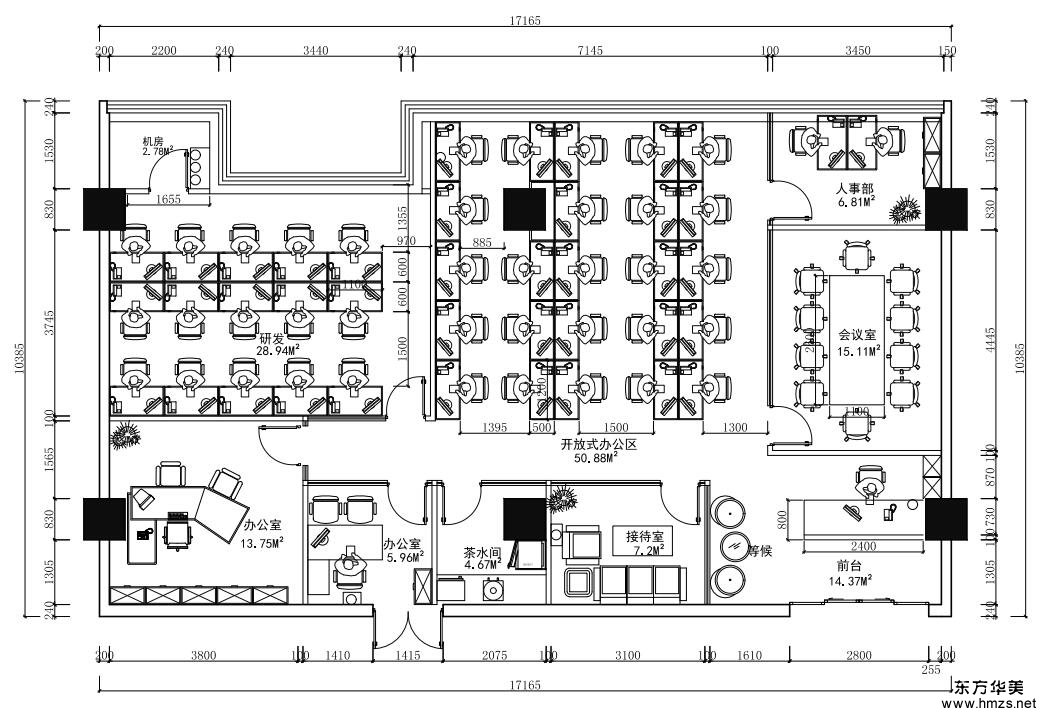
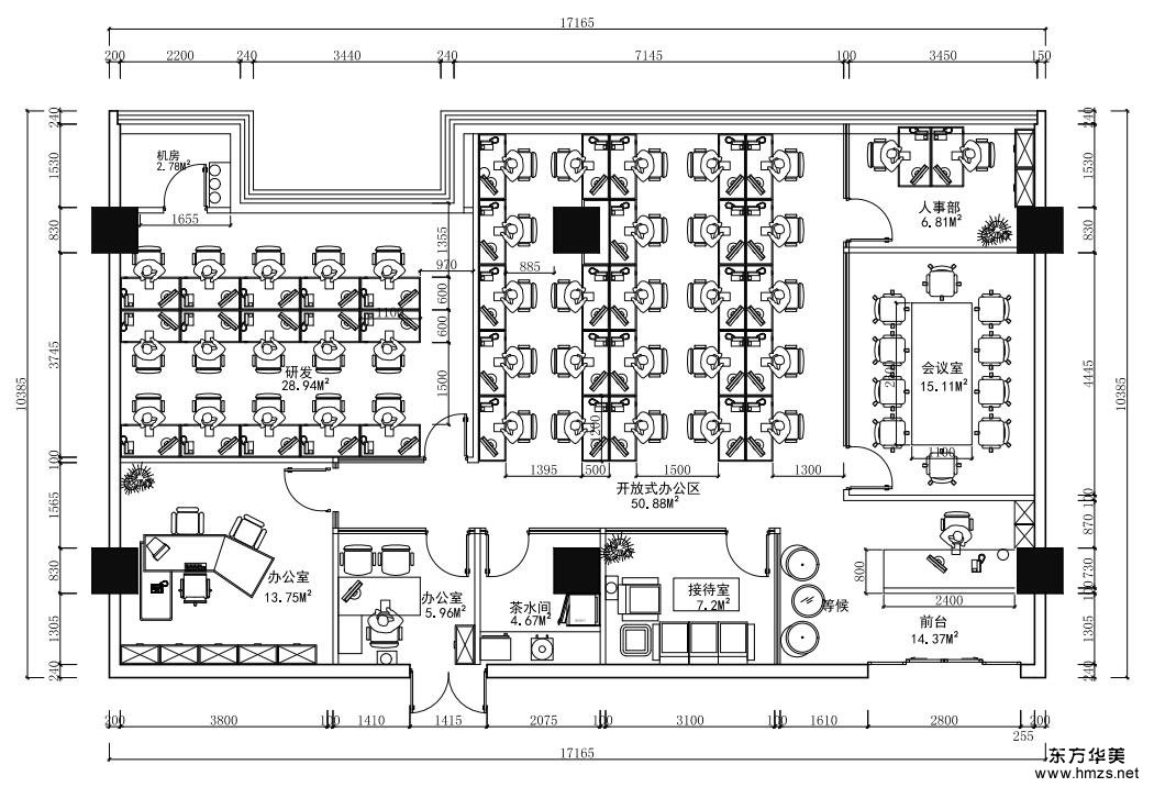
▄原建筑結構分析: 總經理辦公室、財務室和一些特別的會議室外,建議采用全通透或者半通透的隔斷,這樣可以增加企業融合力和方便交流,也便于員工互相監督。在裝修設計中要突出重點區域,抓住幾個關鍵點,例如前臺、會議室、總經理辦公室等空間。要盡可能少地采取大的裝修結構和造型,多用燈光和色彩以及現代化的配飾組合取得良好的裝飾效果。
▄設計需求: 本案要求要大氣、時尚,體現互聯網科技的感覺,展示出大企業的品位。要具有每個辦公人員所需的面積標準,室內裝飾要有寬敞、明快的感覺;要采取降低噪聲、防止靜電的措施等等。
▄設計風格定位: 本案針對客戶需求,采用了現代簡約風格。整體辦公簡約大氣,體現了大企業的文化和品位。首先要考慮與整個建筑的風格相協調,切忌繁瑣,色彩的選擇要盡可能簡單、明快、符合現代人的心理需求。采用大房間、低隔間的形式,應具有開放性、靈活性和可擴性;


北京鑄誠大廈辦公裝修工程
北京銀河SOHO辦公裝修工程
301醫院裝修工程
