綜合智能家居系統中的應用范圍,從安全和防盜的角度出發,我們對智能家居設計案例做一個更好的分析,為了使大家能夠對智能家居防盜系統的了解,我們結合實例仔細分析,詳細解答,希望大家能夠在實際的應用中舉一反三,基本掌握家庭防盜報警系統的設備選型、布防方式等知識。
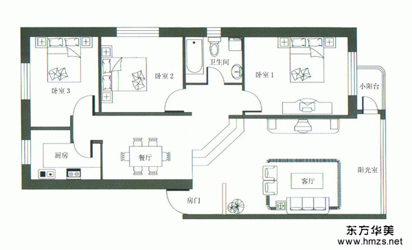
這是一套三室兩廳的戶型,南面有一小陽臺,一大落地窗的陽光室及主臥室的塑鋼窗。東側的衛生間有一小窗和臥室2有一窗戶,北側有臥室3的窗戶和廚房的窗戶。房門外為內樓梯間。

第一 根據房間情況確定需要防范的范圍
從下圖中,我們可以看出,陽臺和大門處于最容易受到入侵的位置;其次就是廚房、臥室3窗戶(由于廚房和臥室3位于北面,在平時一般很少有人,容易成為竊賊的入口);再次就是主臥室1、臥室2和衛生間。
到此,我們已經對需要防范的區域心中有數,同時把要防范區域也確定下來了。

第二 確定防區和每個防區的防范方式及設備
在清楚容易受到入侵的位置和區域后,應該根據你的周邊環境、小區保安措施、家庭環境等因素以及你的經濟情況決定設防的點數。在此,我們對以上區域進行盜設備的配置,您可以根據您的具體情況選擇和增減相關設備。

應客戶的要求我們對房門、小陽臺門、落地窗、各個房間的窗戶及客廳進行設防:其中,大門采用無線門磁探測器,客廳采用紅外探測器進行布防,小陽臺門、廚房、衛生間和三個臥室的窗戶都采用幕簾無線紅外探測器進行布防,落地窗外采用無線紅外對射柵欄布防。
第三 可實現功能
在本案的配置中,在報警器設防狀態下,當房門被打開、撬開等使門扇移位超過1公分的情況下,或者有人體從落地窗、各個臥室的窗戶侵入,探測器偵測到并發出無線報警信號,主機在接收到報警信號后,在打開高音警號的同時,向主人手機和事先設定的電話撥號報警。同時,由于在大門和客廳進行了雙重設防,防范效果能得到有效保證。在本案的配置中,我們在陽臺門和各臥室的窗戶上使用幕簾紅外探測器,使主人在屋內可以自由活動,不會觸發報警器誤報,而且在裝幕紅外探測器的地方,主人從屋內走向室外是不會報警的,而盜賊從室外非法闖入則會觸發報警。很好的解決了主人活動受限制和敵人識別的功能。
第四 所用設備
所需設備:防區電話聯網報警器一臺,紅外廣角探測器一個,門磁探測器一個遙控器二個,高音警號一個,UPS電源一個,以上為報警器套裝,再增加紅外幕簾探測器六個,紅外對射柵欄一對。還可以增加其它探測器,如:煤氣報警、火災報警等探頭。
對于智能家居系統中智能家居安防整個關系到家居安全的問題,以上是給大家舉一個實際案例希望大家對智能安防這個地方有更深一步的了解啊。這是一套配置較高的家庭防盜系統,在這里只是拋磚引玉,給大家以啟發,您可以根據自己的實際情況,來選配自己的防盜系統,使您的家平平安安,在外安心工作,無后顧之憂。



